***Betreutes Wohnen im Herzen von Aichach *** - S7 Quartierswohnanlage - großzügige 2 ZKB im 1.OG -
Objektart
Adresse
Objektdaten
Informationen
Ausstattung
Details
In den Häusern in der Schulstraße 7 a / 9 und 9 a errichten wir jeweils 15 barrierefreie Seniorenwohnungen mit 2- oder 3 Zimmern und Wohnflächen zwischen 50 und 85 m². Alle Wohnungen verfügen entweder über eine Terrasse oder einen Balkon. Tiefgaragen- und Fahrradstellplätze, Kellerabteile und Aufzüge sind selbstverständlich vorhanden.
Über das komplette Dachgeschoss im Haus 7 a erstreckt sich ein großzügiger voll möblierter Gemeinschaftsraum, der allen Bewohnern des Hauses zur Verfügung steht. Das Highlight ist die ca. 94 m² große umlaufende Dachterrasse, die einen wunderbaren Rund-Um-Blick bietet.
Wie in den beiden bereits erstellten Wohnanlagen in Aichach in der Mozartstraße 46 - 48 und 50 wird auch in der neuen Wohnanlage die "Caritas-Sozialstation Aichach e.V." die Betreuung der Bewohner übernehmen.
Wir haben es uns zum Ziel gesetzt, zeitgemäße Wohnformen zu schaffen, die den Bedürfnissen von Senioren gerecht werden. Unsere S7 Seniorenwohnungen bieten sowohl Raum für Privatsphäre, Unabhängigkeit und Individualität als auch Möglichkeiten für Gemeinschaft.
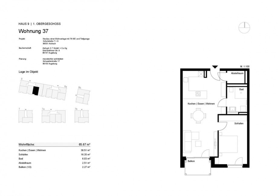
Wir präsentieren Ihnen hier eine großzügige Zimmerwohnung mit Südbalkon. Die Wohnung hat eine Wohnfläche von 65,67 m² und befindet sich im 1. Obergeschosses des Hauses in der Schulstraße 9.
Die Wohnanlage wurde speziell für die Bedürfnisse von Senioren entwickelt. Die optimierten Grundrisse und die barrierefreie Ausstattung des Gebäudes erleichtern den Alltag.
Erfahren Sie eine neue Lebensqualität:
- Parkettböden in allen Wohnräumen
- große bodentiefe Fenster mit elektrischen Rollläden
- Wohnraumlüftung
- energiesparende und komfortable Fußbodenheizung
- Bäder mit bodengleichen Duschen
- unterfahrbare Waschtische
- großer Gemeinschaftsraum mit Küche und toller Dachterrasse
- Betreuungsbüro der Caritas im Haus
- 24 Stunden Notrufsystem
- KfW - Energieeffizienzhaus 40 - EE mit QNG Siegel
Das Wittelsbacher Land ist ein Wohlfühllandkreis, der sich in seinen kulturellen und sozialen Angeboten vielfältig gestaltet und sich trotz seines Status als wichtiger Wirtschaftsstandort im Dreieck Augsburg, Ingolstadt, München seinen idyllischen Charme bewahrt hat.
Eingebettet in eine reizvolle Landschaft hat Aichach vieles zu bieten: eine sehenswerte Altstadt mit dem barocken Rathaus und den historischen Stadttürmen, Kultur, gepflegte Gastlichkeit, zahlreiche Cafés und Bistros, die zum Verweilen einladen.
In Aichach vertritt ein Seniorenrat die Interessen der älteren Mitbewohner. Das Haus der Senioren ist ein beliebter Treffpunkt. Ob Computerrunden zu bestimmten Themen, Fremdsprachenkurse, Gymnastik oder einfach nur Zeitung lesen - hier ist immer etwas los und es gibt Ansprechpartner, die Ihnen weiterhelfen können.
Sie sind immer nah dran an der Natur. Wandern oder radeln Sie auf den zahlreichen Wanderwegen in den Paarauen oder in den Parkanlagen des nahe gelegenen Sissi-Schlosses oder nehmen Sie sich eine Auszeit im Aichacher Freibad. Kurze Wege: medizinische Versorgung, Einkaufsmöglichkeiten, Betreuungs-, Bildungs- und Freizeitangebote - in Aichach ist alles fußläufig zu erreichen.
Ihre Vorteile:
o Hoher Freizeitwert: ein vielfältiges Angebot an sozialen, kulturellen und sportlichen Möglichkeiten
o Beste Lage direkt an Aichachs liebenswerter Altstadt
o Hervorragende Infrastruktur
o Sehr gute Verkehrsanbindung
o Aufstrebende, dynamische Region
Es liegt ein Energiebedarfsausweis vor.
Dieser ist gültig bis 7.7.2033.
Endenergiebedarf beträgt 65.00 kwh/(m²*a).
Wesentlicher Energieträger der Heizung ist Fernwärme.
Das Baujahr des Objekts lt. Energieausweis ist 2024.
Die Energieeffizienzklasse ist B.
Haben wir Sie neugierig gemacht?
Der Verkauf der Wohnungen erfolgt ohne zusätzliche Käuferprovision exklusiv durch unser Büro.
Wir stehen Ihnen nach individueller Terminvereinbarung für ein persönliches Gespräch zur Verfügung, um Ihnen dabei die näheren Einzelheiten des Bauvorhabens zu erläutern. Es besteht die Möglichkeit, eine vor kurzem fertiggestellte Neubauwohnung des Bauträgers in Aichach zu besichtigen.
Mit dem Bau der Wohnanlage wurde bereits begonnen - die Fertigstellung ist für den Sommer 2026 vorgesehen.
Wir unterstützen Sie selbstverständlich gerne auch beim Verkauf Ihrer jetzigen Immobilie - nutzen Sie dabei unsere langjährige Erfahrung.
Sie haben Ihre Wunschimmobilie gefunden und benötigen dazu noch eine passende und auf Ihre Verhältnisse zugeschnittene zinsgünstige Finanzierung? Wir arbeiten sehr erfolgreich mit erfahrenen und unabhängigen Finanzierungexperten zusammen, die Sie dabei unterstützen, eine optimale und günstige Finanzierung Ihrer Wunschimmobilie zu finden.
Der Finanzierungsservice ist für Sie kostenfrei - lassen Sie sich ein unverbindliches Angebot unterbreiten!
Ihr Team von Wettengl + Marzahn
Immobiliencenter Augsburg
Immobilienmakler seit 1990
Verkauf + Vermietung + Finanzierung + Bewertung
Ansprechpartner
Mobil: 00491728246077
wettengl@immobiliencenter-augsburg.de
Energieausweis (Bedarfsausweis)
65 kWh / (m²*a) Endenergiebedarf
65 kWh / (m²*a) Endenergiebedarf
65 kWh / (m²*a) Endenergiebedarf
Weitere Informationen
| Befeuerung | Alternativ |
| Energieausweis gültig bis | 2033-07-07 |
| Energieausweis Baujahr | 2024 |
| Heizung | Fußbodenheizung |
