NEU am Markt: ***Betreutes Wohnen in Aichach *** - Einzug ab 60 Jahren möglich - 3 ZKB ab Juni
Objektart
Adresse
Objektdaten
Informationen
Ausstattung
Details
Sie haben hier die Möglichkeit eine betreute Wohnung im Erstbezug ab dem 01.06.2026 im Herzen von Aichach zu mieten.
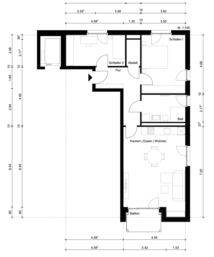
Die großzügige 3 ZKB-Wohnung mit Südbalkon hat eine Wohnfläche von 83,38 m² und befindet sich im 2. Obergeschoss des Hauses in der Schulstraße 7 a.
Über das komplette Dachgeschoss im Haus 7 a erstreckt sich ein großzügiger voll möblierter Gemeinschaftsraum, der allen Bewohnern des Hauses zur Verfügung steht. Das Highlight ist die ca. 94 m² große umlaufende Dachterrasse, die einen wunderbaren Rund-Um-Blick bietet.
Wie in den beiden bereits erstellten Wohnanlagen in Aichach in der Mozartstraße 46 - 48 und 50 wird auch in der neuen Wohnanlage die "Caritas-Sozialstation Aichach e.V." die Betreuung der Bewohner übernehmen.
Für diese Serviceleistung fällt eine monatliche Betreuungspauschale an. Sie beträgt 110 EUR zzgl. der Pauschale für den Hausnotruf 25,50 EUR = insgesamt 135,50 EUR. Falls eine 2. Person mit einzieht, erhöht sich die Betreuungspauschale um 20 EUR.
Diese Kosten kommen zur angegebenen Warmmiete hinzu und sind verpflichtend.
Die Wohnanlage wurde speziell für die Bedürfnisse von Senioren entwickelt. Die optimierten Grundrisse und die barrierefreie Ausstattung des Gebäudes erleichtern den Alltag.
Erfahren Sie eine neue Lebensqualität:
- Parkettböden in allen Wohnräumen
- große bodentiefe Fenster mit elektrischen Rollläden
- Wohnraumlüftung
- energiesparende und komfortable Fußbodenheizung
- Bäder mit bodengleichen Duschen
- unterfahrbare Waschtische
- großer Gemeinschaftsraum mit Küche und toller Dachterrasse
- Betreuungsbüro der Caritas im Haus
- 24 Stunden Notrufsystem
- KfW - Energieeffizienzhaus 40 - EE mit QNG Siegel
Eine Einbauküche ist seitens der Eigentümer eingebaut und im Mietpreis berücksichtigt.
Der TG-Stellplatz wurde bereits mit einer Wallbox ausgestattet.
Das Wittelsbacher Land ist ein Wohlfühllandkreis, der sich in seinen kulturellen und sozialen Angeboten vielfältig gestaltet und sich trotz seines Status als wichtiger Wirtschaftsstandort im Dreieck Augsburg, Ingolstadt, München seinen idyllischen Charme bewahrt hat.
Eingebettet in eine reizvolle Landschaft hat Aichach vieles zu bieten: eine sehenswerte Altstadt mit dem barocken Rathaus und den historischen Stadttürmen, Kultur, gepflegte Gastlichkeit, zahlreiche Cafés und Bistros, die zum Verweilen einladen.
In Aichach vertritt ein Seniorenrat die Interessen der älteren Mitbewohner. Das Haus der Senioren ist ein beliebter Treffpunkt. Ob Computerrunden zu bestimmten Themen, Fremdsprachenkurse, Gymnastik oder einfach nur Zeitung lesen - hier ist immer etwas los und es gibt Ansprechpartner, die Ihnen weiterhelfen können.
Sie sind immer nah dran an der Natur. Wandern oder radeln Sie auf den zahlreichen Wanderwegen in den Paarauen oder in den Parkanlagen des nahe gelegenen Sissi-Schlosses oder nehmen Sie sich eine Auszeit im Aichacher Freibad. Kurze Wege: medizinische Versorgung, Einkaufsmöglichkeiten, Betreuungs-, Bildungs- und Freizeitangebote - in Aichach ist alles fußläufig zu erreichen.
Ihre Vorteile:
o Hoher Freizeitwert: ein vielfältiges Angebot an sozialen, kulturellen und sportlichen Möglichkeiten
o Beste Lage direkt an Aichachs liebenswerter Altstadt
o Hervorragende Infrastruktur
o Sehr gute Verkehrsanbindung
o Aufstrebende, dynamische Region
Es liegt ein Energiebedarfsausweis vor.
Dieser ist gültig bis 7.7.2033.
Endenergiebedarf beträgt 65.00 kwh/(m²*a).
Wesentlicher Energieträger der Heizung ist Fernwärme.
Das Baujahr des Objekts lt. Energieausweis ist 2024.
Die Energieeffizienzklasse ist B.
Haben wir Sie neugierig gemacht? Für weitere Fragen oder die Vereinbarung eines Besichtigungstermins stehen wir Ihnen sehr gerne zur Verfügung.
Die Wohnung kann ab Juni angemietet werden.
Wettengl + Marzahn
Immobiliencenter Augsburg
Immobilienmakler seit 1990
Verkauf + Vermietung + Bewertung
Ansprechpartner
Mobil: 004917620496354
marzahn@immobiliencenter-augsburg.de
Energieausweis (Bedarfsausweis)
65 kWh / (m²*a) Endenergiebedarf
65 kWh / (m²*a) Endenergiebedarf
65 kWh / (m²*a) Endenergiebedarf
Weitere Informationen
| Befeuerung | Alternativ |
| Energieausweis gültig bis | 2033-07-07 |
| Energieausweis Baujahr | 2024 |
| Heizung | Fußbodenheizung |
